ザ・パークハビオ恵比寿プレイス
2019.04.18
三菱地所ハウスネット贈る新築高級賃貸マンション「ザ・パークハビオ恵比寿プレイス」の登場です。
JR山手線・埼京線・湘南新宿ライン「恵比寿」駅徒歩9分、東京メトロ日比谷線「恵比寿」駅徒歩11分、東京メトロ日比谷線「広尾」徒歩12分など4路線・2駅利用可能なアクセス良好なエリア。
通勤・通学にとても利便性良好。 物件1階店舗部分にはセブンイレブンがあり、他にもローソン恵比寿三丁目店、サークルK恵比寿一丁目店が徒歩圏内にあり便利な環境。
物件周辺にはマルエツプチ白金台プラチナ通り店などがございます。
近隣には恵比寿東公園、駅周辺には飲食店が多数立ち並び休日も満喫できるエリアになっております。
建物は地上11階建て、共有部分には宅配ボックス、防犯カメラ、24時間ゴミ捨て可能なゴミ置き場がございます。
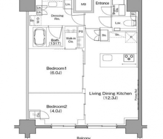
お部屋は1Rタイプから2LDKタイプまであり、シングルからディンクス・ファミリーまで幅広く利用しやすい間取りです。
室内設備は、エアコン、システムガスキッチン、浴室暖房乾燥機、独立洗面化粧台、追焚機能、温水洗浄機能付き便座、ダブルロックなどが付いており、上質な室内設備が嬉しい仕様になっております。
ルームタイプ
| 部屋 | 6F |   | 賃料 | ¥304,000 |
|---|---|---|---|---|
| 管理費 | ¥15,000 |   | 面積 | 54.41m² |
物件データ
| 住所 | 東京都渋谷区恵比寿3丁目3-3 |
|---|---|
| アクセス | JR山手線 恵比寿 徒歩9分 東京メトロ日比谷線 恵比寿 徒歩11分 東京メトロ日比谷線 広尾 徒歩12分 |
| 敷金・保証金 | 1ヶ月 |
| 償却 | 0ヶ月 |
| 礼金 | 1ヶ月 |
| 更新料・再契約料 | 新賃料の1ヶ月 |
| 契約内容 | 普通賃貸借2年契約 |
| 用途 | 住居 |
| 構造・規模 | RC造地上11F |
| 築年数 | 2018年 8月 |
| 設備 | B・T別 シャワー 追焚機能 浴室乾燥機 温水洗浄便座 洗面台 洗面所独立 ガスコンロ付 3口以上コンロ システムキッチン 収納スペース クローゼット ウォークインクローゼット シューズIC 照明器具 室内洗濯機置場 給湯 全居室フローリング エアコン2台以上 全居室エアコン CS BS端子 CATV MMコンセント インターネット対応 モニタ付オートロック モニタ付インターホン 防犯カメラ 火災警報器(報知機) バルコニー エレベーター 宅配BOX |
| 保険その他 | |
| 備考 | |
| 現況 | 直接お電話にてご確認ください。 |































